9-19、9-26系列高壓離心通風機
文章來源:離心風機 作者:離心風機小編 發布時間:2018-05-15 13:05:58 瀏覽次數:17325
[導讀]:9-19、9-26系列高壓離心通風機的用途及型式9-19、9-26系列高壓離心通風機,一般用于鍛冶爐及高壓強制通風,并廣泛用于輸送物料,輸送空氣和其他不自燃的、對人體無害的、對鋼鐵材料無腐蝕性的氣體。氣體內不許有粘性物質,所含塵土及硬質顆粒物不大于150mg/m’。氣體溫度不得超過80℃。▶ 語音朗讀
9-19、9-26系列高壓離心通風機的用途及型式
9-19、9-26系列高壓離心通風機,一般用于鍛冶爐及高壓強制通風,并廣泛用于輸送物料,輸送空氣和其他不自燃的、對人體無害的、對鋼鐵材料無腐蝕性的氣體。氣體內不許有粘性物質,所含塵土及硬質顆粒物不大于150mg/m’。氣體溫度不得超過80℃。對易燃易爆氣體的輸送,葉輪可用鋁合金加工,以防在運轉中引起火花.電機配用隔爆型電機。其性能參數均可與普通風機相同。
9-19、9-26系列高壓離心通風機可制成右旋轉和左旋轉兩種型式。從電動機一側正視,葉輪順時針旋轉,稱為右旋風機.以“右”表示;葉輪逆時針旋轉,稱為左旋風機,以“左”表示。風機的出口位置,以機殼的出風口角度表示。
9-19、9-26系列高壓離心通風機為單吸入式,有No.4-16共13個機號.其中No:4-6:3傳動方式為A式傳動,No.7.1-16傳動方式為D式傳動
詳細信息:
9-26 離心風機性能參數表
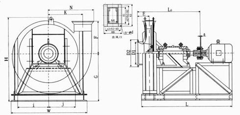
三、9-19 9-26系列風機外形尺寸


|
|
9-26 離心風機性能參數表
|
機號
|
轉速
(r/min) |
風量
(m3/h) |
全壓
(Pa) |
功率
(kW) |
重量 (kg)
|
機號
|
轉速
(r/min) |
風量
(m3/h) |
全壓
(Pa) |
功率
(kW) |
重量 (kg)
|
|
|
4A
|
2900
|
2198
2473 2748 3022 3297 |
3930
3850 3740 3590 3420 |
5.5
|
114
|
9D
|
1450
|
12519
14804 |
5110
5040 |
30
|
900
|
|
|
15649
17214 18779 20344 21909 |
4920
4770 4590 4380 4160 |
45
|
970
|
|||||||||
|
3572
3847 |
3210
3000 |
7.5
|
120
|
|||||||||
|
4.5A
|
2900
|
3572
3847 |
5010
4920 |
7.5
|
132
|
|||||||
|
3912
4303 4695 5086 5477 |
4790
4610 4400 4160 3900 |
11
|
180
|
10D
|
1450
|
17173
19320 21466 |
6350
6250 6110 |
55
|
1090
|
|||
|
23613
25760 27906 30053 |
5940
5730 5480 5220 |
75
|
1250
|
|||||||||
|
5A
|
2900
|
4293
4830 5367 5903 |
6230
6130 5960 5750 |
15
|
210
|
|||||||
|
11.2D
|
1450
|
24127
27143 30159 33175 |
7960
7850 7670 7450 |
110
|
2150
|
|||||||
|
6440
6977 7513 |
5510
5220 4920 |
18.5
|
230
|
|||||||||
|
5.6A
|
2900
|
6030
3786 |
7870
7740 |
22
|
300
|
|||||||
|
36190
39206 42222 |
7180
6870 6550 |
132
|
2250
|
|||||||||
|
7540
8294 9048 9802 10556 |
7540
7300 7000 6670 6310 |
30
|
350
|
|||||||||
|
960
|
15974
17970 19967 21964 |
3470
3420 3340 3240 |
30
|
1460
|
||||||||
|
6.3A
|
2900
|
8858
9662 10735 |
10020
9860 9630 |
45
|
490
|
|||||||
|
11809
12882 13956 15029 |
9340
8990 8570 8140 |
55
|
580
|
23961
25957 27954 |
3120
2980 2830 |
37
|
1550
|
|||||
|
12.5D
|
960
|
22207
24982 27758 |
4350
4280 4190 |
45
|
1790
|
|||||||
|
7.1D
|
2900
|
12293
13830 |
12800
12610 |
75
|
1050
|
|||||||
|
15366
16903 18439 19976 21513 |
12330
11970 11540 11050 10520 |
110
|
1500
|
30534
33310 36086 38862 |
4070
3920 3750 3570 |
75
|
2240
|
|||||
|
8.0D
|
2900
|
17585
19783 |
16250
16010 |
132
|
1620
|
14D
|
960
|
31199
35099 |
5450
5370 |
75
|
3100
|
|
|
21982
21180 26378 28576 30774 |
15650
15200 14660 14030 13360 |
200
|
1760
|
38998
42898 46798 50698 54598 |
5250
5100 4920 4710 4480 |
110
|
3220
|
|||||
|
1450
|
8793
9892 10991 |
4020
3950 3850 |
18.5
|
715
|
16D
|
960
|
46571
52392 58213 |
7120
7020 6860 |
160
|
3700
|
||
|
12090
13189 14289 14288 15387 |
3730
3580 3410 3220 |
30
|
800
|
64035
69856 75677 81499 |
6660
6420 6150 5850 |
250
|
4660
|
三、9-19 9-26系列風機外形尺寸

|
9-19 9-26系列 4A -6.3A 離心風機外形尺寸圖、表
|
||||||||||||||
|
系列
|
機 號
|
D1
|
D2
|
D3
|
n1-Φd1
|
A1
|
A2
|
A3
|
A4
|
A5
|
A6
|
X
|
Y
|
n2-Φd2
|
|
9-19
|
4A
|
180
|
220
|
250
|
8-7
|
128
|
174
|
214
|
92
|
138
|
178
|
3
|
2
|
10-7
|
|
4.5A
|
200
|
250
|
280
|
8-7
|
144
|
198
|
230
|
104
|
152
|
192
|
3
|
2
|
10-7
|
|
|
5A
|
224
|
265
|
305
|
8-7
|
160
|
206
|
246
|
115
|
1, 60
|
202
|
3
|
2
|
10-7
|
|
|
5.6A
|
250
|
308
|
348
|
8-10
|
179
|
225
|
265
|
129
|
174
|
215
|
3
|
2
|
10-7
|
|
|
6.3A
|
280
|
335
|
375
|
8-10
|
202
|
246
|
288
|
145
|
189
|
231
|
3
|
2
|
10-7
|
|
|
系列
|
機 號
|
D1
|
D2
|
D3
|
n1-Φd1
|
A1
|
A2
|
A3
|
A4
|
A5
|
A6
|
X
|
Y
|
n2-Φd2
|
|
9-26
|
4A
|
224
|
254
|
284
|
8-7
|
196
|
228
|
250
|
128
|
165
|
184
|
4
|
3
|
14-7
|
|
4.5A
|
250
|
280
|
310
|
8-10
|
221
|
252
|
275
|
144
|
177
|
2300
|
4
|
3
|
14-7
|
|
|
5A
|
280
|
320
|
360
|
8-10
|
245
|
284
|
299
|
160
|
192
|
216
|
4
|
3
|
14-7
|
|
|
5.6A
|
315
|
355
|
395
|
8-10
|
274
|
304
|
328
|
179
|
216
|
235
|
5
|
4
|
14-7
|
|
|
6.3A
|
355
|
395
|
435
|
8-10
|
309
|
340
|
365
|
202
|
236
|
261
|
5
|
4
|
10-7
|
|
系列
|
機 號
|
E
|
F
|
G
|
K
|
M
|
N
|
a
|
b
|
c
|
d
|
e
|
f
|
|
9-19
|
4A
|
108
|
361
|
692
|
286
|
715
|
420
|
200
|
350
|
50
|
300
|
385
|
35
|
|
4.5A
|
120
|
344
|
716
|
322
|
782
|
450
|
240
|
390
|
50
|
340
|
430
|
39
|
|
|
5A
|
126
|
376
|
788
|
258
|
868
|
500
|
340
|
450
|
50
|
440
|
495
|
43
|
|
|
5.6A
|
140
|
415
|
874
|
401
|
962
|
550
|
350
|
480
|
50
|
450
|
534
|
48
|
|
|
6.3A
|
157
|
461
|
975
|
451
|
1085
|
620
|
450
|
570
|
60
|
570
|
626
|
55
|
|
系列
|
機 號
|
E
|
F
|
G
|
K
|
M
|
N
|
a
|
b
|
c
|
d
|
e
|
f
|
|
9-26
|
4A
|
132
|
360
|
711
|
287
|
761
|
450
|
240
|
390
|
50
|
340
|
430
|
49
|
|
4.5A
|
147
|
405
|
799
|
322
|
849
|
500
|
340
|
450
|
50
|
440
|
495
|
55
|
|
|
5A
|
165
|
450
|
887
|
359
|
939
|
550
|
350
|
485
|
50
|
450
|
534
|
61
|
|
|
5.6A
|
186
|
504
|
993
|
402
|
1053
|
620
|
450
|
570
|
60
|
570
|
626
|
68
|
|
|
6.3A
|
209
|
567
|
1117
|
451
|
1167
|
680
|
550
|
720
|
70
|
690
|
780
|
77
|

| 9-19 9-26系列7.1D-16D離心風機外形尺寸圖、表 | ||||||||||||
|
系列
|
機 號
|
D1
|
D2
|
A1
|
A2
|
A3
|
A4
|
A5
|
A6
|
n-Φd
|
n1×b1
|
n2×b2
|
|
9-19
|
7.1D
|
315
|
395
|
227
|
272
|
313
|
163
|
218
|
248
|
14-10
|
3×68
|
4×68
|
|
8D
|
355
|
436
|
256
|
312
|
342
|
184
|
244
|
294
|
14-10
|
3×76
|
4×74
|
|
|
9D
|
400
|
506
|
288
|
348
|
398
|
207
|
263
|
313
|
18-10
|
4×63
|
5×66
|
|
|
10D
|
450
|
550
|
320
|
386
|
426
|
230
|
300
|
340
|
18-10
|
1×69
|
5×72
|
|
|
11.2D
|
500
|
620
|
359
|
420
|
484
|
258
|
328
|
388
|
18-12
|
4×79
|
5×83
|
|
|
12.5D
|
560
|
680
|
400
|
456
|
489
|
288
|
344
|
380
|
20-12
|
4×86
|
6×76
|
|
|
14D
|
630
|
750
|
448
|
516
|
557
|
322
|
405
|
448
|
22-12
|
5×81
|
6×86
|
|
|
16D
|
710
|
830
|
512
|
574
|
621
|
368
|
440
|
484
|
24-12
|
5×88
|
7×82
|
|
|
系列
|
機 號
|
D1
|
D2
|
A1
|
A2
|
A3
|
A4
|
A5
|
A6
|
n-Φd
|
n1×b1
|
n2×b2
|
|
9-26
|
7.1D
|
400
|
500
|
348
|
390
|
414
|
227
|
272
|
296
|
20-10
|
4×68
|
6×65
|
|
8D
|
450
|
550
|
393
|
432
|
458
|
256
|
300
|
325
|
20-10
|
4×75
|
6×72
|
|
|
9D
|
500
|
620
|
441
|
483
|
507
|
288
|
330
|
357
|
20-10
|
4×82.5
|
6×80.5
|
|
|
10D
|
560
|
680
|
490
|
528
|
556
|
320
|
356
|
389
|
20-10
|
4×89
|
6×88
|
|
|
11.2D
|
630
|
750
|
549
|
600
|
638
|
358
|
410
|
450
|
26-12
|
5×82
|
8×75
|
|
|
12.5D
|
710
|
830
|
613
|
664
|
702
|
400
|
456
|
492
|
28-12
|
6×76
|
8×83
|
|
|
14D
|
800
|
920
|
686
|
747
|
795
|
448
|
516
|
564
|
30-12
|
6×86
|
9×83
|
|
|
16D
|
900
|
1040
|
784
|
840
|
893
|
512
|
588
|
628
|
34-12
|
7×84
|
10×84
|
|
系列
|
機 號
|
E
|
F
|
G
|
H
|
K
|
N
|
L0
|
L
|
W
|
i
|
j
|
ε
|
|
9-19
|
7.1D
|
177
|
466
|
680
|
1200
|
507
|
656
|
1230
|
2100
|
1150
|
400
|
450
|
4-6
|
|
8D
|
200
|
525
|
760
|
1350
|
572
|
733
|
1256
|
2220
|
1250
|
440
|
520
|
4-6
|
|
|
9D
|
226
|
590
|
850
|
1520
|
644
|
821
|
1289
|
1930
|
1400
|
500
|
600
|
4-6
|
|
|
10D
|
250
|
656
|
940
|
1680
|
723
|
908
|
1317
|
2060
|
1500
|
550
|
650
|
6-8
|
|
|
11.2D
|
280
|
735
|
1050
|
1890
|
801
|
1025
|
1595
|
2440
|
1700
|
600
|
800
|
6-8
|
|
|
12.5D
|
313
|
820
|
1160
|
2100
|
895
|
1140
|
1633
|
2550
|
1900
|
700
|
900
|
8-10
|
|
|
14D
|
350
|
920
|
1280
|
2400
|
1001
|
1270
|
2030
|
2900
|
2050
|
800
|
950
|
12-14
|
|
|
16D
|
400
|
1050
|
1440
|
2700
|
1144
|
1460
|
2090
|
3400
|
2250
|
880
|
1040
|
12-14
|
|
系列
|
機 號
|
E
|
F
|
G
|
H
|
K
|
N
|
L0
|
L
|
W
|
i
|
j
|
ε
|
|
9-26
|
7.1D
|
237
|
639
|
730
|
1260
|
509
|
716
|
1317
|
2290
|
1200
|
420
|
520
|
4-6
|
|
8D
|
262
|
720
|
810
|
1410
|
5740
|
803
|
1349
|
2330
|
1400
|
500
|
600
|
4-6
|
|
|
9D
|
294
|
810
|
920
|
1590
|
646
|
900
|
1392
|
2140
|
1500
|
550
|
650
|
6-8
|
|
|
10D
|
327
|
900
|
1000
|
1760
|
717
|
995
|
1433
|
2260
|
1600
|
600
|
700
|
6-8
|
|
|
11.2D
|
367
|
1008
|
1130
|
1980
|
803
|
1122
|
1724
|
2660
|
1850
|
700
|
850
|
8-10
|
|
|
12.5D
|
418
|
1125
|
1240
|
2190
|
896
|
1247
|
1755
|
2690
|
1950
|
740
|
940
|
8-10
|
|
|
14D
|
469
|
1260
|
1450
|
2500
|
1003
|
1380
|
2200
|
3350
|
2050
|
800
|
950
|
12-14
|
|
|
16D
|
524
|
1440
|
1540
|
2800
|
1148
|
1610
|
2270
|
3650
|
2300
|
900
|
1100
|
12-14
|
非特殊說明,本文為本站原創(翻譯)文章,轉載請注明:本文轉自:江西鑫佳通科技股份有限公司。
本文連接:http://www.333huo.com/product/3136214225.html
想了解更多請點擊===>>高壓離心通風機 離心通風機 離心風機
上一個產品:4-72、4-79系列離心風機
下一個產品:T4-72/4-79/TS4-79/4-70系列離心式通風機
9-19、9-26系列高壓離心通風機產品知識推薦
- 離心風機對于普通風機具有的優勢 2017-04-13
- 離心風機的工作原理及在應用中節能趨勢 2017-10-13
- 怎么做好柜式離心風機箱安裝工作? 2017-06-13
- 柜式離心風機在賓館飯店廚房的應用 2017-09-16
- 如何解決離心風機速度不穩? 2017-10-26
- htfc低噪聲消防柜式離心風機箱如何安裝?3c柜式離心風機箱安裝事項介紹 2018-01-16
- 三大措施增強離心風機抗腐蝕性能 2017-07-13
- 離心風機、軸流風機、混流風機的區別 2017-02-23
- 離心風機成型前的檢查工作要做到位 2017-06-02
- 低噪聲柜式離心風機轉速不穩定原理分析 2018-01-08
- 高溫雙速離心風機有哪些型號呢? 2020-08-20
- 柜式離心排煙風機有什么特點呢? 2020-05-05
- 離心式風機的使用場合范圍 2017-08-26
- HTFC 消防排煙箱式離心風機詳細介紹 2019-09-21
- 解讀:柜式離心風機的分類和特點 2020-06-11
- 維護離心風機有哪些注意事項? 2017-06-26
- 軸流風機和離心風機在機械通風中的作用 2017-04-21
- 消防排煙柜式離心風機的技術要求 2017-07-25
- 4-68型離心風機使用前需要了解的知識 2017-06-08
- 廠房設施中選用離心通風機還是軸流風機好 2017-08-09












相關評論: