防排煙系統常用閥門
防煙系統 采用機械加壓送風方式或自然通風方式,防止煙氣進入疏散通道等區域的系統。機械加壓送風 對樓梯間、前室及其它需要被保護區域采用機械送風,使該區域形成正壓,防止煙氣進入。
排煙系統 采用機械排煙方式或自然排煙方式,將煙氣排至建筑物外的系統。機械排煙采用排煙風機將煙氣排至建筑物外的方式。自然排煙 利用火災時產生的熱煙氣流的浮力和外部風力作用,通過建筑物的對外開口把煙氣排至室外的排煙方式。
下面介紹下常用的幾類防火閥和風口,先看下國標圖集對各類風口的定義:
防火閥
該閥門安裝在有防煙、防火要求的通風、空調系統的管道上,平時處于常開狀態,火災時關閉起到防煙阻火的作用。
1、溫控:溫感器動作閥門自動關閉,可70℃,150℃(廚房用)熔斷;
2、電控:消防中心電信號(DC24V)電磁鐵動作閥門自動關閉;
3、手動關閉、手動復位;
4、關閉后輸出一組有源觸點信號和一組無源觸點信號

一般安裝在排煙系統的管道上,平時處于常開狀態,火災時,當排煙氣流溫度達到280℃吋,溫感器動作將閥門關閉,起到排煙阻火的作用。
1、溫控:溫感器動作閥門自動關閉;
2、電控:消防中心電信號(DC24V)電磁鐵動作閥門自動關閉;
3、手動關閉、手動復位;
4、關閉后輸出一組有源觸點信號和一組無源觸點信號。

正壓送風閥口
正壓送風口又稱為加壓送風口、多葉送風口。在其閥體正面裝有一鋁合金風口,一般安裝在樓梯間前室、合用前室等處的側墻上,有一個操作小室,可設置于閥體的左右或上下位置,該小室裝有一活動小門,便于進行操作。
主要功能、特點:
-
平時常閉,電動、手動開啟;
-
輸出開啟動作信號,一組無源觸點信號;
-
手動復位關閉;
-
70℃溫感器動作,閥門自動重新關閉;可選項;
-
自動開啟:消防中心電信號(DC24V/0.5A)電磁鐵動作閥門自動開啟;


-
平時呈開啟狀態,防火風口安裝在通風空調系統送風、排煙出入口處
-
由鋁合金風口與防火閥組合,風口可調節氣流方向
-
閥門葉片開啟角度可調,70 ℃ 閥門自動關閉, 手動關閉和開啟,可輸出關閉動作電信號。

該閥門安裝在排煙系統管道上,平時處于常閉狀態,火災時打開進行排煙。
1、電控:消防中心電信號(DC24V)電磁鐵動作閥門自動開啟;
2、手動開啟、手動復位;
3、開啟后輸出一組有源觸點信號和一組無源觸點信號。

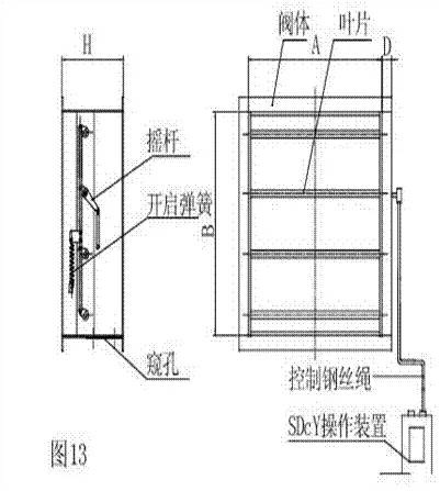
遠控排煙閥的主要功能與排煙閥相同,只是遠控排煙閥的閥體與操作裝置分離,操作裝置安裝在閥體附近的距地面高1200mm左右的墻壁上,操作器通過鋼絲繩與閥體相聯進行遠距離控制,鋼絲繩的長度一般為6m。
1、電控:消防中心電信號(DC24V)電磁鐵動作閥門自動開啟;
2、手動開啟、手動復位;
3、開啟后輸出一組有源觸點信號和一組無源觸點信號。
非特殊說明,本文為本站原創(翻譯)文章,轉載請注明:本文轉自:江西鑫佳通科技股份有限公司。
本文連接:http://www.333huo.com/news/308.html
想了解更多請點擊===>>
行業知識相關推薦
- 氣體滅火系統自動泄壓裝置的作用與選擇 2017-04-22
- 消防排煙風機的應用范圍與安裝流程 2020-01-19
- 通風排煙系統中的設置要求 2017-06-07
- 如何控制離心風機的風量 2017-06-10
- 通風設備廠如何檢測排煙混流風機的性能?高溫排煙混流風機制造與檢測 2018-02-07
- 前傾與后傾離心風機的選配與應用 2017-10-16
- 消防高溫排煙風機價格如何?消防高溫排煙風機價格 2017-12-15
- 一分鐘看透:施工合同審查全部關鍵點!值得收藏! 2017-03-20
- 消防排煙風機的六大安裝技巧 2017-05-10
- 防火閥在工程設計中應如何選擇呢? 2017-05-23


相關評價: