防火閥:圖紙、特性文件表填寫規范
文章來源:鑫佳通 作者:排煙防火閥小編 發布時間:2017-04-28 09:52:43 瀏覽次數:15960
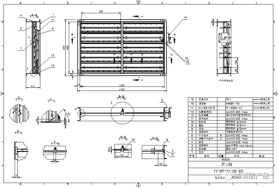
[導讀]:總體要求:1. 所有圖紙幅面為A4。2.圖紙設置有三視圖(主視圖+俯視圖+側視圖)、局部放大圖(適用于不便于標注尺寸、不便于表示清楚結構的地方)、標題欄、明細欄及其他需要標注的內容。3. 圖紙標題欄至少需要標明內容:① 樣品名稱(必須與認證申請名稱一致);② 樣品型號規格(必須與認證申請型號規格一致)。③ 執行標▶ 語音朗讀
總體要求:
1. 所有圖紙幅面為A4。
2.圖紙設置有三視圖(主視圖+俯視圖+側視圖)、局部放大圖(適用于不便于標注尺寸、不便于表示清楚結構的地方)、標題欄、明細欄及其他需要標注的內容。
3. 圖紙標題欄至少需要標明內容:
① 樣品名稱(必須與認證申請名稱一致);
② 樣品型號規格(必須與認證申請型號規格一致)。
③ 執行標準號(如:GB 15930-2007)。
4. 圖紙中需標注認證企業名稱,需加蓋公章。
防火閥門產品圖紙的其他要求:
防火閥門產品(排煙閥、防火閥、排煙防火閥)圖紙除基本要求外,尚有以下要求:
1.局部放大圖應體現擋板尺寸結構、葉片形狀、彈簧設置等。
2. 至少需要標注尺寸:(注:相同尺寸僅標一處即可;核實數據的準確性。)
① 防火閥外形尺寸、公稱尺寸、閥體厚度、法蘭寬度;
② 葉片寬度、高度;
③ 葉片與閥體之間縫隙(適用時);
④ 擋板尺寸。
3. 至少需要標注結構:
① 閥體結構;
② 葉片結構;
③ 葉片與閥體之間、葉片與葉片之間的搭接形式。
④ 擋板設置位置
⑤ 連桿設置位置;
⑥ 彈簧形式及設置位置;
⑦ 執行機構底板、外殼結構、棘輪、凸輪、轉軸(需結合執行機構圖紙和檢驗報告)。
4. 材料明細表需要標明內容:
① 關鍵元器件(執行機構、溫感器、感溫元件)的名稱、型號規格、生產單位;
② 零配件的名稱、型號規格(不需注明生產單位);
③ 必須標注閥體、葉片、擋板材質及厚度。材質標注應明確(如Q235冷軋鋼板)。
5.另需提供執行機構的報告、執行機構圖紙。
圖紙中經常出現與實物不符的問題,現場需核實:
1. 核實閥上執行機構的數量。執行機構的形狀、手柄圖上與實物不符。
2. 接口法蘭的工藝結構(焊接、鉚接、材料等)照片、圖紙、實物不一致。
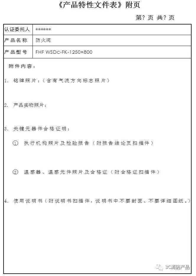
特性文件表的填寫規范:
非特殊說明,本文為本站原創(翻譯)文章,轉載請注明:本文轉自:江西鑫佳通科技股份有限公司。
本文連接:http://www.333huo.com/news/197.html
想了解更多請點擊===>>排煙閥 防火閥 排煙防火閥
上一篇:風機軸承座漏油的處理
下一篇:鋁合金雙層百葉風口的分類和應用范圍
行業知識相關推薦
- 防火閥、排煙防火閥和排煙閥的區別! 2017-05-12
- 防排煙系統中防火閥的設置與選用 2017-11-29
- 防火閥、排煙防火閥、排煙閥、排煙口、加壓送風口-區別及應用 2017-10-13
- 暖通空調系統中防火閥怎么設置最佳 2017-06-03
- 常開型排煙防火閥的種類和功能有哪些? 2020-01-07
- 防火閥的安裝與日常維護 2020-03-03
- 排煙防火閥同防火閥相比具有哪些不同 2017-06-16
- 防火閥、排煙防火閥的設置方法 2017-05-09
- 建筑防排煙分區、原理與防火排煙閥的區別 2017-09-16
- 防煙排煙系統精解 2017-07-18










相關評價: